Rodinný dům B2

prodáno

Rodinný dům B2 vyniká dvojgaráží v 1.PP a atraktivní dispozicí 4+kk, v rámci níž najdete velkorysý obývací prostor, dva dětské pokoje s terasou a zelenou střechou a koupelnu v 1.NP a dále ložnici s terasou a druhou koupelnu ve 2.NP. Dům má zahradu o výměře 150 metrů. Za ní se nachází dalších až 750 metrů zahrady, kterou lze přikoupit navíc. Z její horní části je krásný výhled na město.

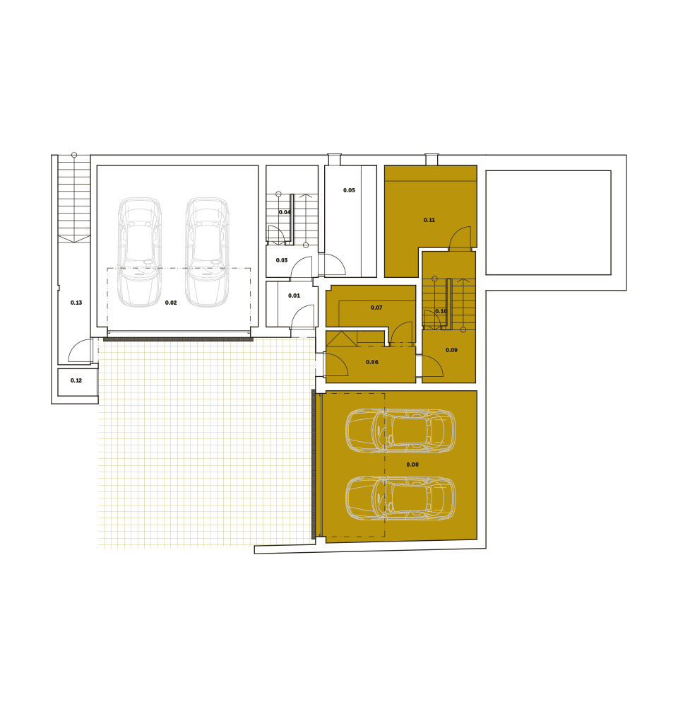
Číslo Místnost m2
0.06 Zádveří 6,18
0.07 Šatna 6,11
0.08 Dvojgaráž 33,49
0.09 Schodišťová hala 8,20
0.10 Komora 1,72
0.11 Technická místnost 12,67
1.PP celkem 64,3
Číslo Místnost m2
1.08 Schodišťová hala 7,68
1.09 Obývací prostor 32,68
1.10 Předsíňka 2,96
1.11 WC 2,28
1.12 Koupelna 5,83
1.13 Dětský pokoj 10,08
1.14 Dětský pokoj 10,21
  Terasa 1.NP 3,69
  Zelená střecha 1.NP 28,97
1.NP celkem (bez terasy a zelené střechy) 71,72
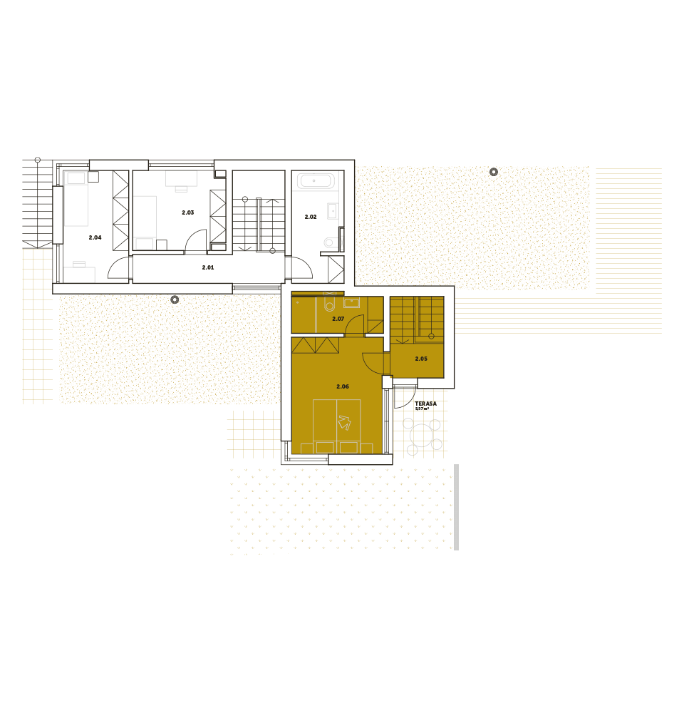
Číslo Místnost m2
2.05 Chodba 6,35
2.06 Ložnice 15,43
2.07 Koupelna 4,90
  Terasa 2.NP 5,57
2.NP celkem (bez terasy) 26,68
MUDr. Karel Kameník
+420 608 071 979
karel.kamenik@pux.cz