Rodinný dům A2

prodáno

Rodinný dům s jednogaráží a prostornou technickou místností v 1.PP skýtá hlavní obytný prostor, dva dětské pokoje a šatnu v 1.NP. Ložnici s další velkou šatnou a koupelnou najdete ve 2.NP, stejně jako dvě terasy v krásným výhledem. Dům má zahradu o výměře 104 metrů.

Číslo Místnost m2
0.06 Zádveří 6,30
0.07 Garáž 20,74
0.08 Schodištová hala 9,84
0.09 Komora 1,45
0.10 Technická místnost 12,47
1.PP celkem 50,80
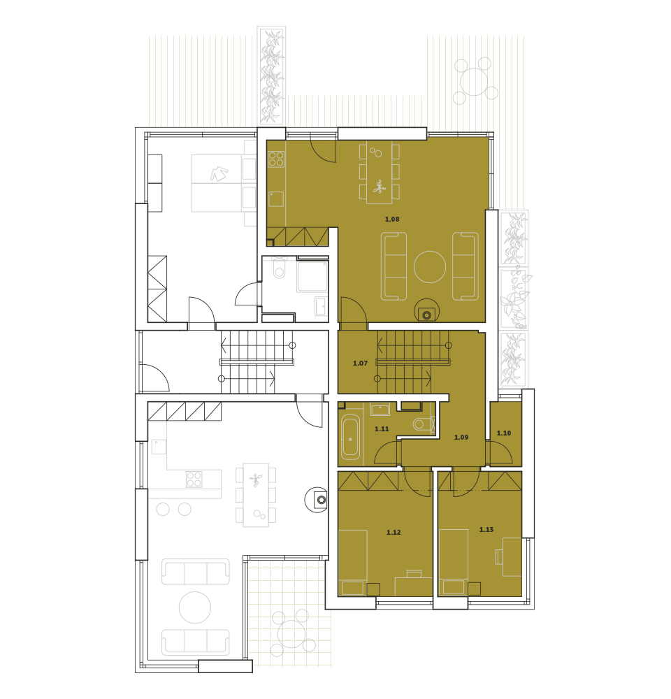
Číslo Místnost m2
1.07 Schodištová hala 9,28
1.08 Obývací prostor 34,04
1.09 Chodba 4,05
1.10 Šatna 2,05
1.11 Koupelna 4,81
1.12 Dětský pokoj 11,85
1.13 Dětský pokoj 10,47
1. NP celkem 76,55
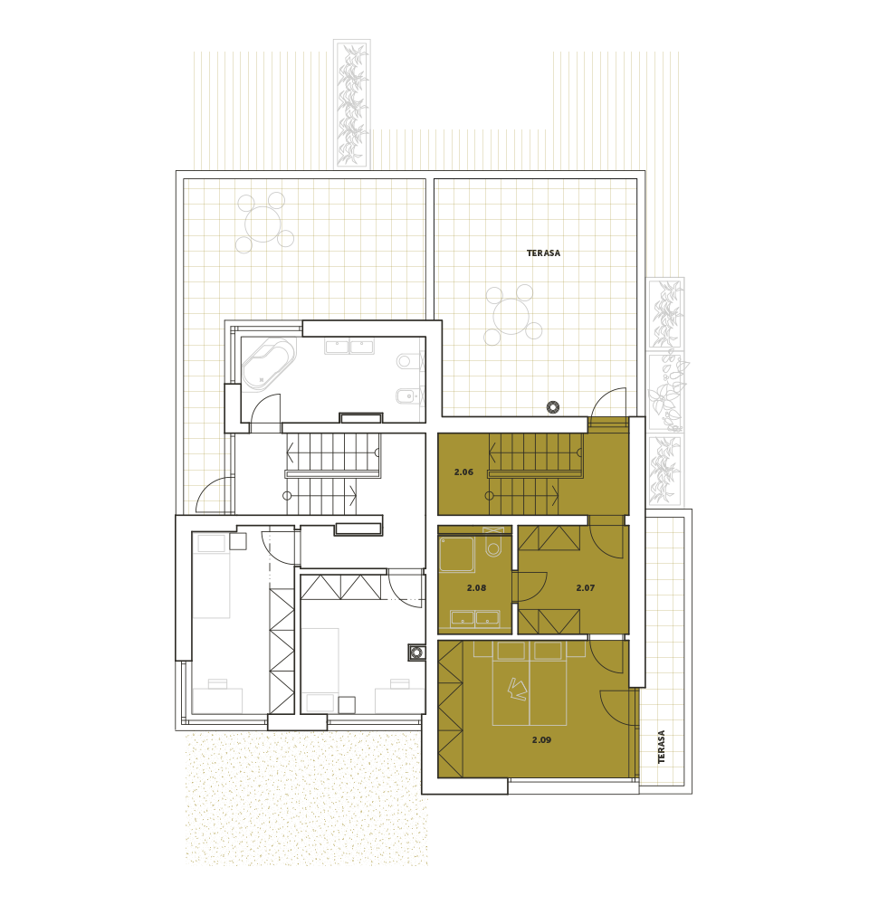
Číslo Místnost m2
2.06 Schodištová hala 9,30
2.07 Šatna 7,16
2.08 Koupelna 4,32
2.09 Ložnice 15,58
  Terasa 28,24
  Terasa 6,27
2. NP celkem (bez teras) 36,36
MUDr. Karel Kameník
+420 608 071 979
karel.kamenik@pux.cz