Rodinný dům A1

prodáno

Prostorný rodinný dům s dispozicí 4+kk s jednogaráží a technickou místností v 1.PP nabízí hlavní obytný prostor v 1.NP včetně na jih orientované lodžie a ložnice s vlastní šatnou a koupelnou. V 2. NP jsou pak dva dětské pokoje, velká koupelna a rozlehlá terasa. K domu náleží zahrada o výměře 130 metrů.

Číslo Místnost m2
0.01 Zádveří 8,31
0.02 Garáž 24,82
0.03 Schodištová hala 9,64
0.04 Komora 1,45
0.05 Technická místnost 12,26
1.PP celkem 56,48
Číslo Místnost m2
1.01 Schodištová hala 12,25
1.02 Obývací prostor 35,96
1.03 Ložnice 20,18
1.04 Koupelna 4,81
1. NP celkem (bez lodžie) 73,20
  Lodžie 8,07
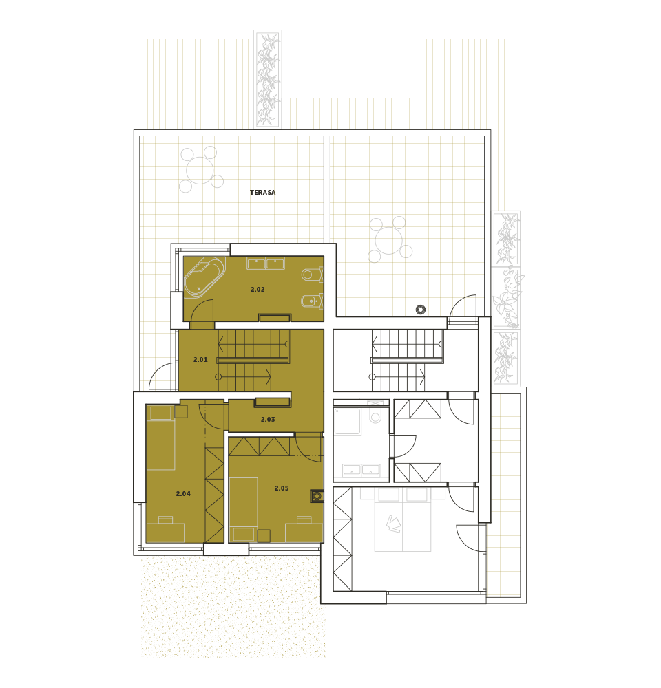
Číslo Místnost m2
2.01 Schodištová hala 9,30
2.02 Koupelna a WC 9,20
2.03 Chodba 2,91
2.04 Dětský pokoj 11,34
2.05 Dětský pokoj 10,37
  Terasa 25,41
2. NP celkem (bez terasy) 43,12
MUDr. Karel Kameník
+420 608 071 979
karel.kamenik@pux.cz